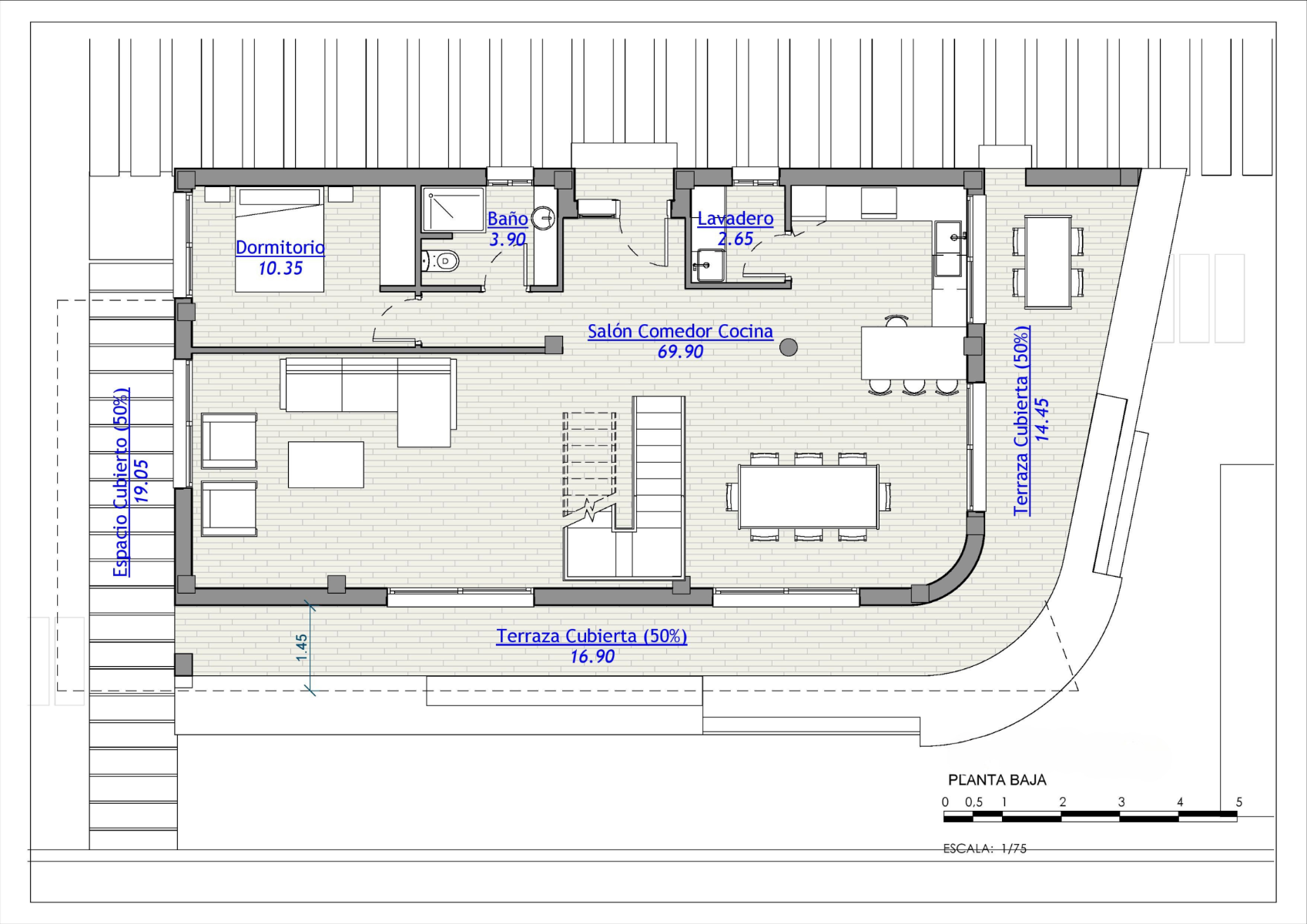
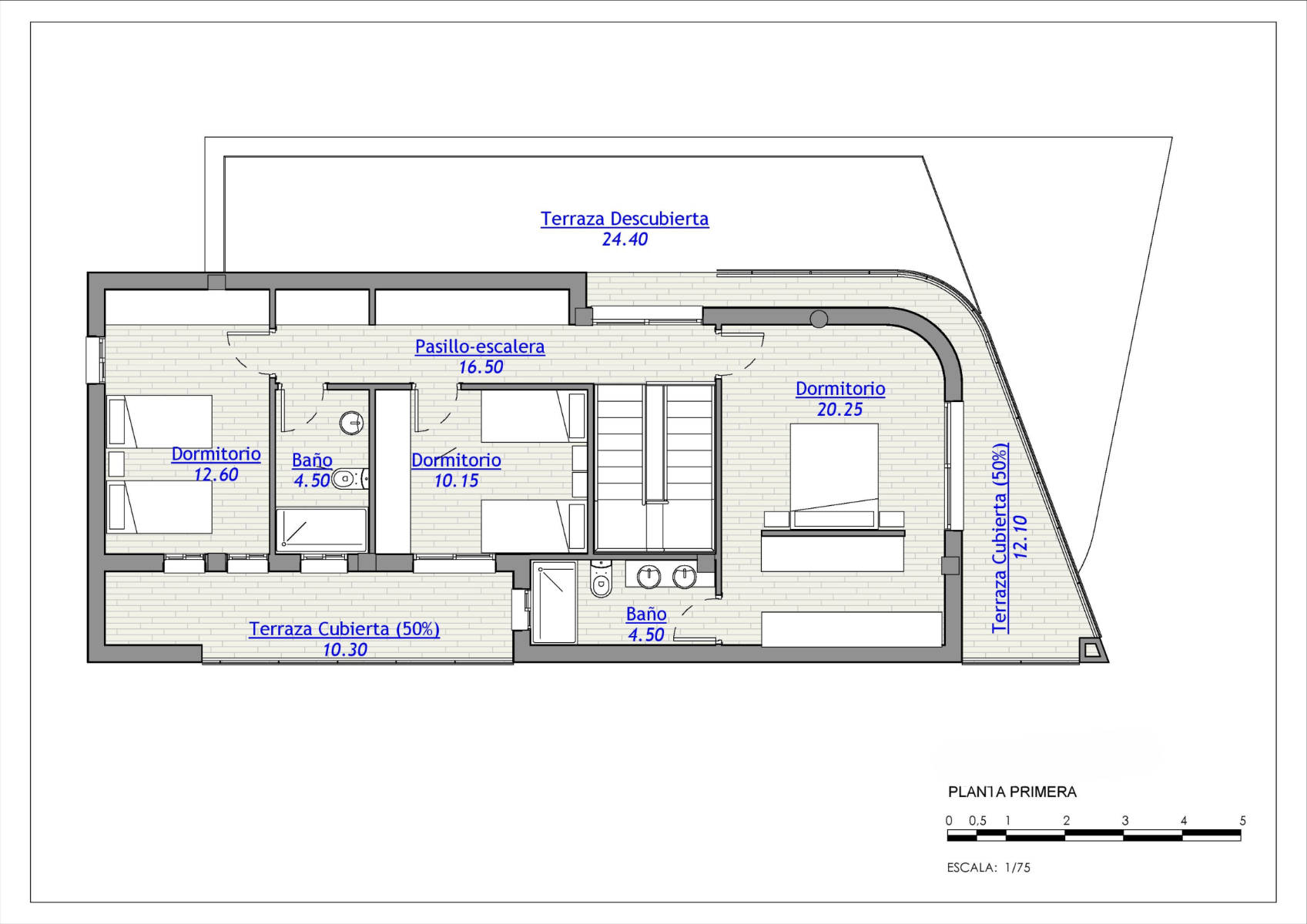
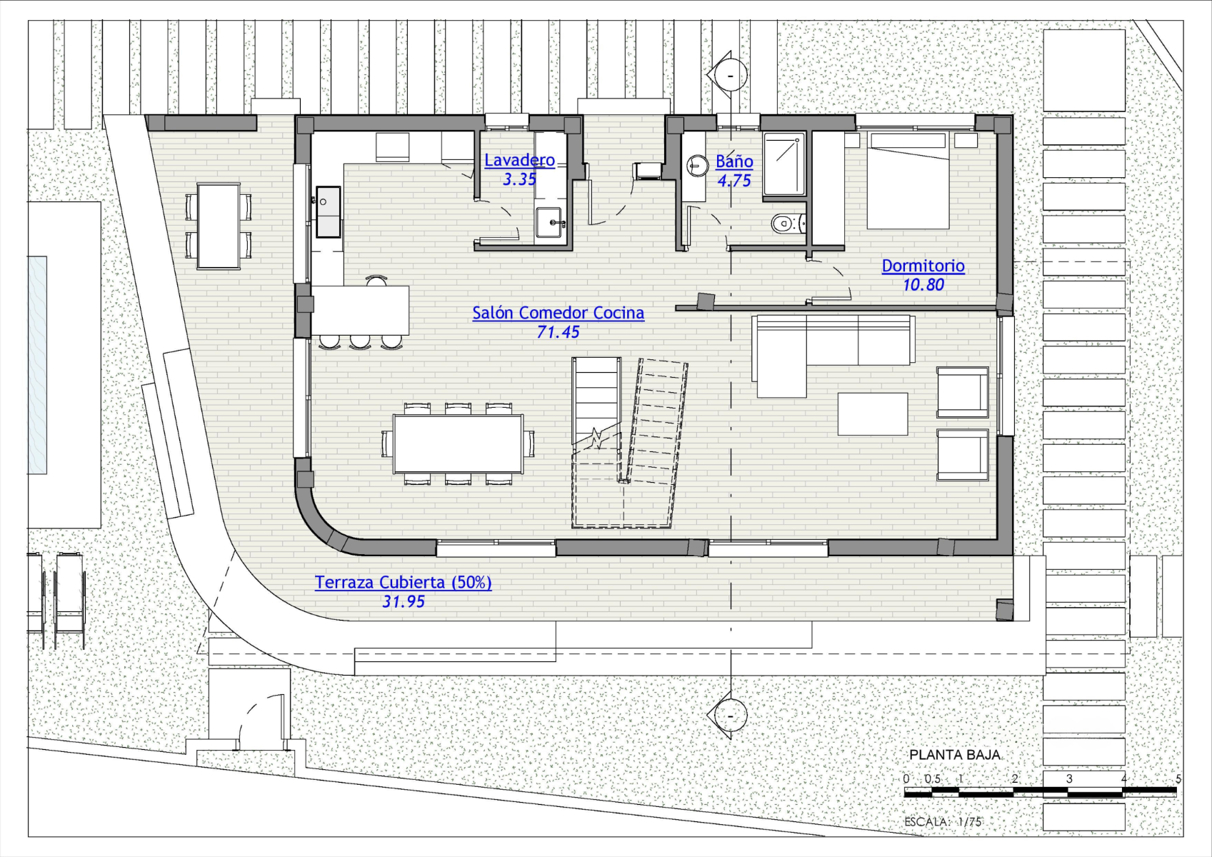
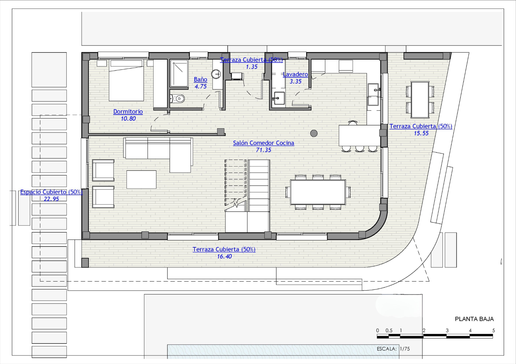
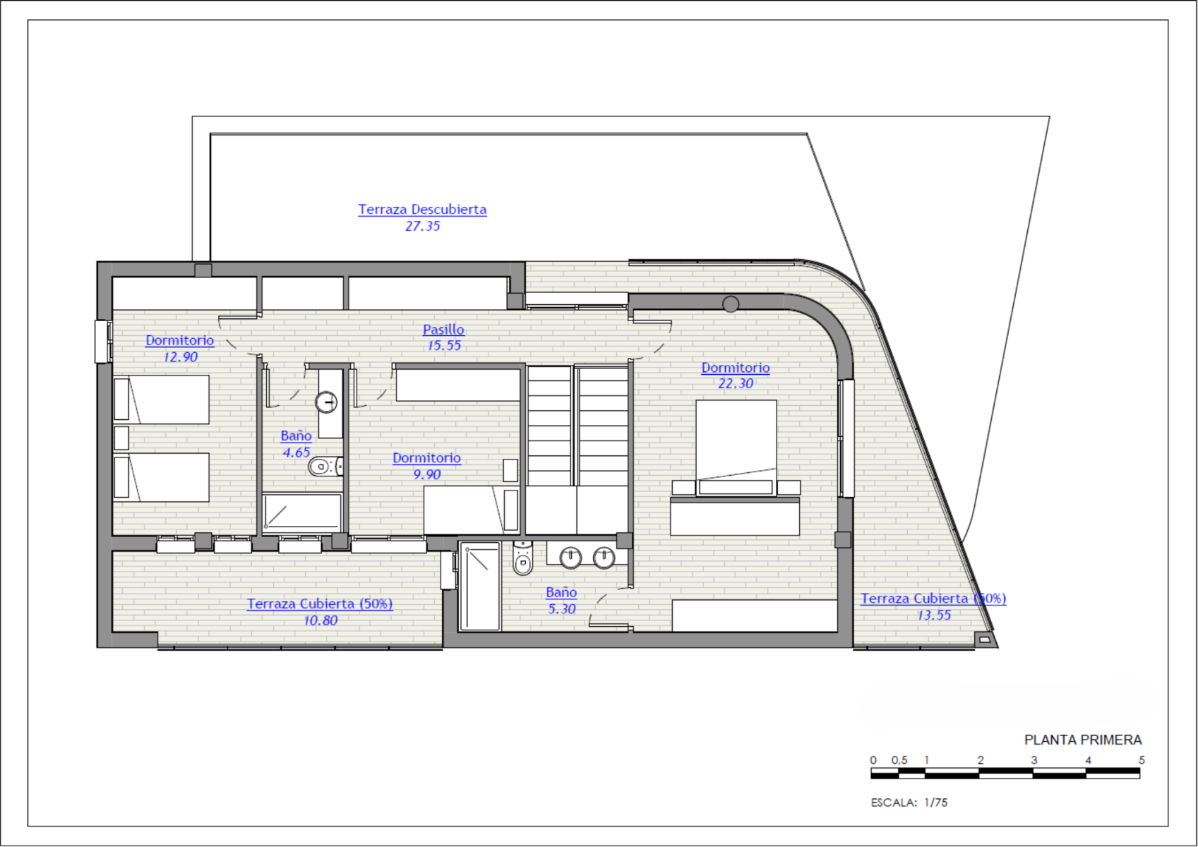
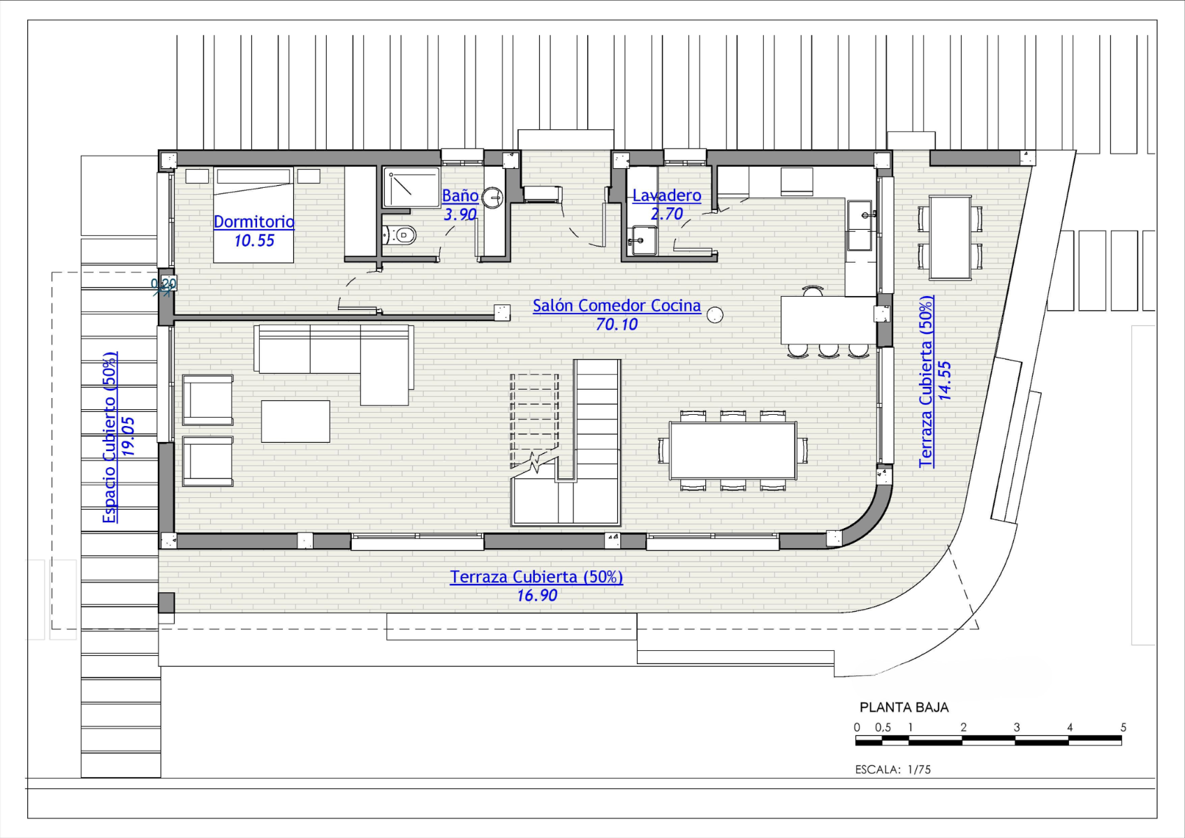
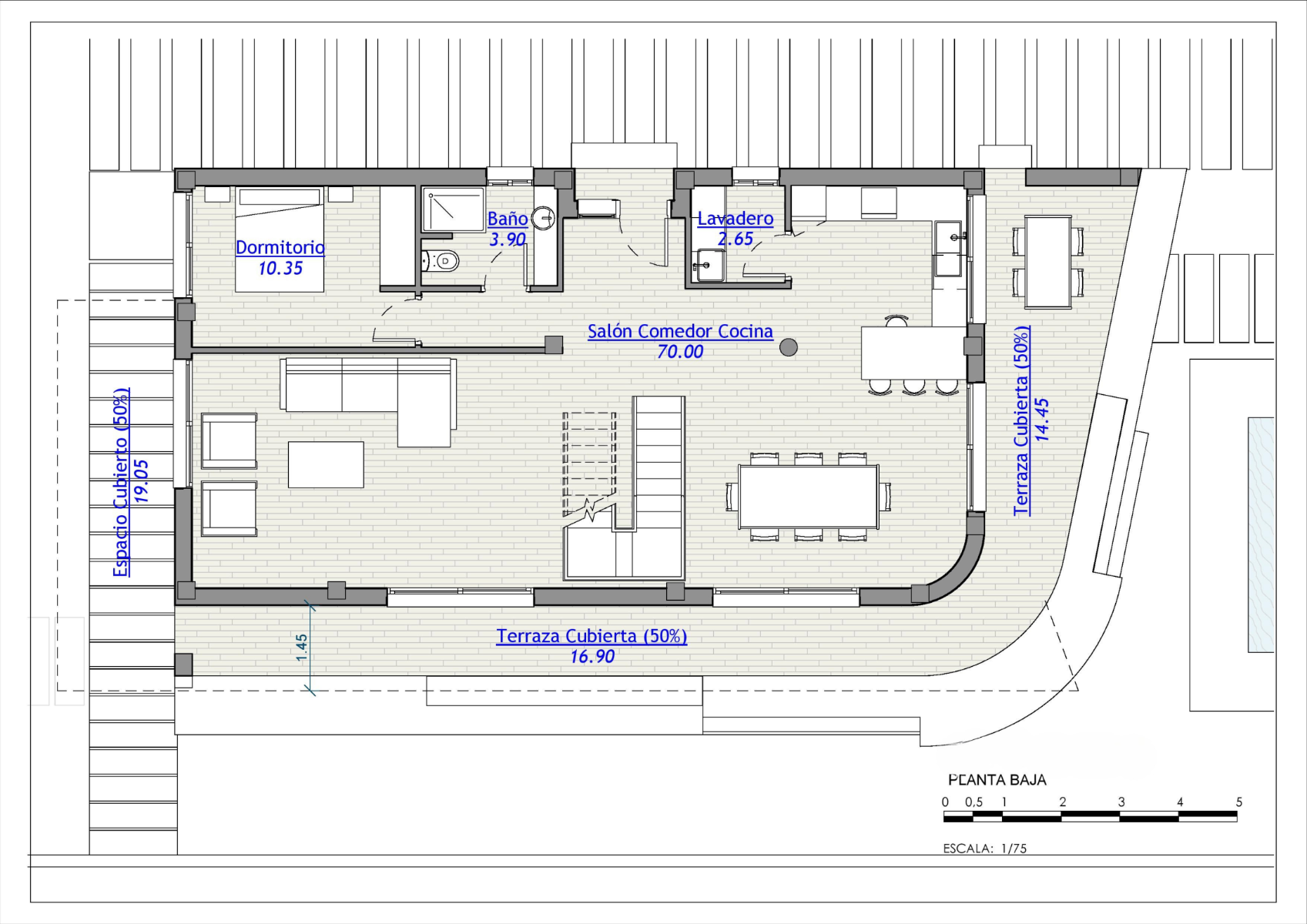
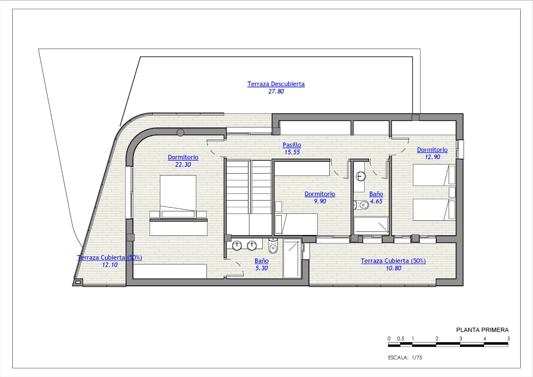
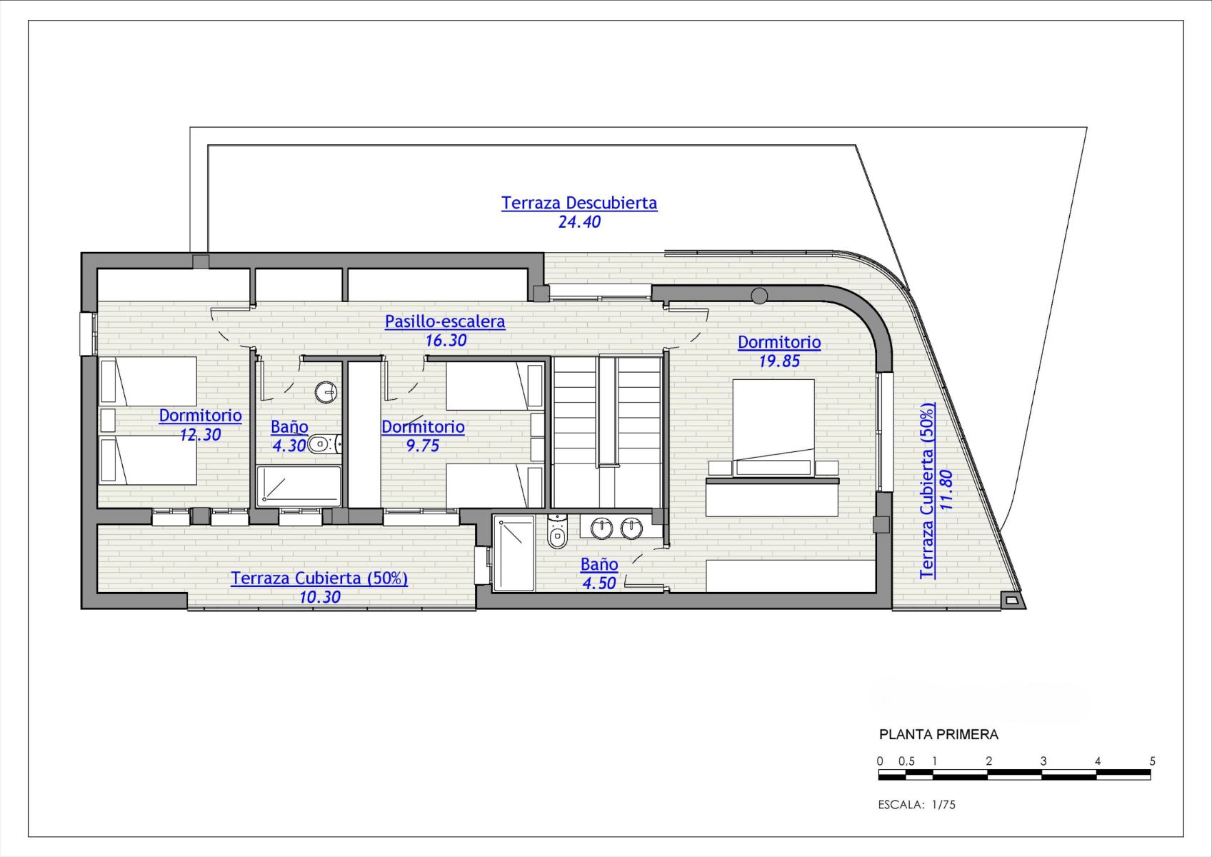
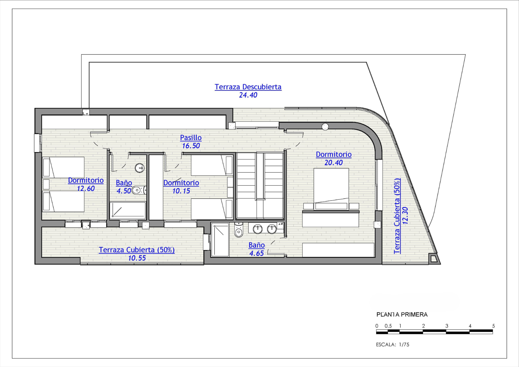
Denna exceptionella fristående villa i två plan erbjuder ➡️ 4 rymliga sovrum och 3 stilfulla badrum, med 256 m² noggrant planerad boyta på en generös tomt om 505 m². Designad med fokus på kvalitet och komfort inkluderar den ett öppet kök, ett ljust och luftigt vardagsrum, grovkök, walk-in-garderob och högkvalitativa finish överallt. Hemmet är utrustat med luftkonditionering i alla rum, ett aerotermiskt vattenvärmesystem för energieffektivitet, förstärkt säkerhetsdörr, tvåglasfönster och elektriska persienner. Utomhus finns en vackert färdigställd privat pool, elektrisk grind och en säker parkeringsplats. Belägen i ett lugnt men välförbundet bostadsområde, endast 3 km från stranden, 1,2 km från lokala bekvämligheter och 25 km från Alicantes flygplats, erbjuder denna fastighet både avkoppling och närhet. ➡️ Sex olika hustyper finns tillgängliga, med boytor från 256 till 273 m² och tomter från 505 till 668 m², med priser från 850.000 € till 897.000 €, vilket ger en unik möjlighet att välja en planlösning som passar din livsstil. Oavsett om det är som lyxboende eller investering sticker denna villa ut med sin moderna design, generösa ytor och oslagbara läge.
La Marina och San Fulgencio, belägna på södra Costa Blanca, är eftertraktade områden för dem som söker ett lugnt liv i en levande miljö. La Marina erbjuder en charmig blandning av traditionell spansk karaktär och modern infrastruktur, med ett brett utbud av restauranger, kaféer och butiker. Bara några minuter bort ligger La Marinas fantastiska gyllene stränder, kända för sitt klara vatten och sina naturliga sanddyner. San Fulgencio, rikt på historia och lokal kultur, erbjuder en stark känsla av gemenskap och ligger ➡️ en kort bilresa från större städer som Elche, Alicante och Torrevieja. Regionen erbjuder också utmärkta vandringsleder, naturreservat som El Hondo och lätt tillgång till toppgolfbanor som La Marquesa i Ciudad Quesada och Las Colinas Golf & Country Club. Med ett varmt medelhavsklimat, goda vägförbindelser och aktiviteter året runt är detta en idealisk plats för både permanentboende och semester.
Ingår i utrustningen:
Om du behöver expertvägledning och stöd för dina fastighetstransaktioner finns vårt flerspråkiga team av fastighets- och förrättningspecialister här för att hjälpa dig på varje steg. Ring idag, så kan vi ordna en visning, antingen personligen eller virtuellt, och göra den här drömhemmet till verklighet.