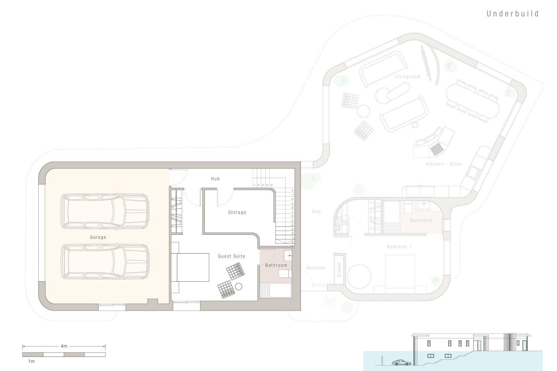
Njut av oöverträffad lyx med denna fantastiska nybyggda villa på Costa Blanca, ett mästerverk av modern arkitektur som sträcker sig över 330 m² byggd yta på en vidsträckt 870 m² stor privat tomt. Denna tvåvåningsbostad har fyra rymliga sovrum och fyra badrum, designade för ultimat komfort och sofistikering. Fastigheten har en privat pool, en utomhusdusch och ett privat garage med plats för två bilar, plus ett separat förråd och ett mångsidigt källarutrymme. Utrustad med luftkonditionering och ett omfattande värmesystem, inklusive golvvärme i hela huset, säkerställer denna villa komfort året runt samtidigt som den är miljömedveten med solpaneler och ett solvärmesystem för vatten. Ytterligare lyxiga detaljer inkluderar en klädkammare, tvåglasfönster, en förstärkt säkerhetsdörr och bekvämligheten med inkluderade vitvaror, tillsammans med förinstallation för en laddningspunkt för elbilar. Njut av de vackra vyerna och lugnet i ett lugnt område som fortfarande är perfekt anslutet till bekvämligheter (1,2 km), stranden (3 km), flygplatsen (25 km) och närmaste golfbana (10 km), allt med en 10-årig garanti för fullständig sinnesro.
✅ Höjdpunkter:
Områdena Urb La Marina och det angränsande Urb La Escuera, båda tillhörande kommunen San Fulgencio, bildar en av de största och mest kosmopolitiska bostadsområdena på södra Costa Blanca. San Fulgencio i sig behåller en traditionell spansk bykärna, med en historia rotad i 1700-talets dränering av Segura-flodens marskland för jordbruk, och erbjuder historiska platser som dess 1700-tals församlingskyrka och ett kommunalt arkeologiskt museum som visar iberiska artefakter. Urbanisationerna är dock en modern oas som huvudsakligen befolkas av en mångsidig europeisk gemenskap, och erbjuder ett avslappnat turistliv centrerat kring bekvämlighet och det utmärkta medelhavsklimatet. Närliggande städer som Guardamar del Segura, känt för sina omfattande sanddyner och tallskogar som leder till Blå Flagg-stränder, och den livliga staden Torrevieja är lättillgängliga. För shopping är stora centra som Habaneras och La Zenia Boulevard bara en kort bilresa bort. Naturälskare kan utforska vandrings- och cykellederna i de skyddade saltsjöarna i La Mata och Torrevieja eller naturparken El Hondo. Golfentusiaster är väl omhändertagna, med prestigefyllda banor som La Marquesa i Ciudad Quesada och La Finca inom en 10 km radie. Området är mycket självförsörjande med utmärkta bekvämligheter året runt, vilket gör det till en önskvärd plats för både semester och permanent boende.
Om du behöver expertvägledning och stöd för dina fastighetstransaktioner finns vårt flerspråkiga team av fastighets- och förrättningspecialister här för att hjälpa dig på varje steg. Ring idag, så kan vi ordna en visning, antingen personligen eller virtuellt, och göra den här drömhemmet till verklighet.
Alla detaljer som anges på denna sida, inklusive fastighetsbeskrivningar, funktioner och relaterade kostnader, presenteras efter bästa förmåga. De är dock föremål för verifiering under köpprocessen. Watsons Real Estate / Barclays Properties ansvarar inte för några felaktigheter eller utelämnanden.